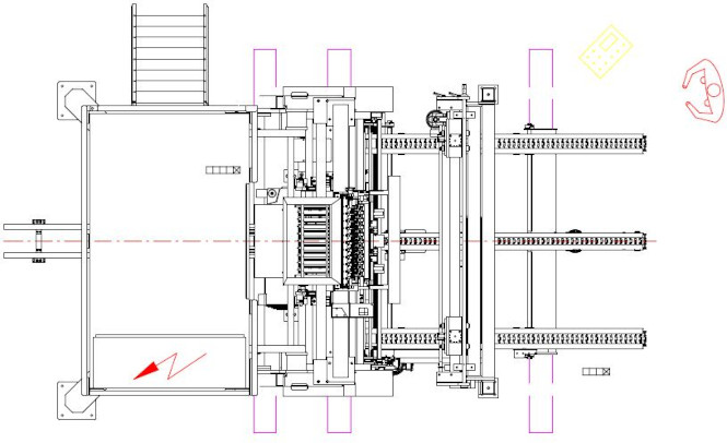
P+K Unterteilnagelmaschine

P+K Unterteilnagelmaschine
zur Herstellung von Palettenunterteile im Querdurchlauf
Unterteillänge von 600 - 1.700
mmBrettbreiten von 75 - 150 mmBrettstärken von 11 - 24 mmKlotzabmessungen von 60 x 78 x 70 /145 x 145 x 100Siemens Steuerung





___________________________________________________________________________________